You are here
Автоматични турникети BA3
- ОПИСАНИЕ
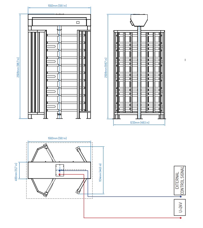
- ЧЕРТЕЖИ
- ДОКУМЕНТИ
- ВИДЕО
- ЗАПИТВАНЕ

Автоматични турникети BA3-
| ЕДНОЛЕНТОВИ | BA3-1-3 | BA3-1-4 | BA3-1-I | BA3-1-S |
|
|
|
|
|
| Ленти за преминаване [бр] | една | една | една | една |
| Въртящи се рамена [бр] | 3 | 4 | 1 | 4 + панел |
| Ширина [m] | 1,50 | 1,50 | 1,36 | 1,50 |
| Височина [m] | 2,50 | 2,50 | 2,50 | 2,50 |
| Дълбочина [m] | 1,20 | 1,49 | 0,72 | 1,49 |
| Финиш и цвят |
Инокс Поцинкован Поцинкован+RAL RAL 5010 RAL 9003 RAL 7016 |
|||
| ДВУЛЕНТОВИ | BA3-2-S | BA3-2-3 | BA3-2-4 | BA3-2-I | BA3-2-R |
|
|
|
|
|
|
| Ленти за преминаване [бр] | две | две | две | две | две |
| Въртящи се рамена [бр] | 4 + панел | 3 | 4 | 1 + 1 | 3 + 1 |
| Ширина [m] | 2,05 | 2,30 | 2,30 | 1,83 | 2,38 |
| Височина [m] | 2,50 | 2,50 | 2,50 | 2,50 | 2,50 |
| Дълбочина [m] | 1,52 | 1,62 | 1,62 | 1,07 | 1,31 |
| Финиш и цвят |
Инокс Поцинкован Поцинкован+RAL RAL 5010 RAL 9003 RAL 7016 |
||||
ОПИСАНИЕ
BA3-1-3 - Висок единичен турникет с три секции на въртящото се рамо. Предназначен за контрол на движението на пешеходци.
ВА3-1-4 - Висок единичен турникет с четири роторни секции.
BA3-1-I - Висок единичен турникет с една роторна секция, който позволява комфортно и безконтактно преминаване през по-широкия проход /за преминаване на хора с увреждания или с допълнителен багаж/
BA3-1-S - Единичен висок турникет с единичен ротор с четири секции и стоманен панел, който укрепва конструкцията и повишава степента на сигурност
BA3-2-S - Висок двоен турникет с два четирисекционни ротора и стоманен панел, укрепващ конструкцията на съоръжението с цел по-висока сигурност.
BA3-2-3 - Висок двоен турникет с универсално приложение, подходящ за всеки обект. Оборудван с два трисекционни ротора, позволяващи едновременното използване на двата прохода.
BA3-2-4 - Двоен турникет, висок, оборудван с два четирисекционни ротора, позволяващи едновременното използване на два прохода. Подходящи за обекти със строг контрол на достъп и високи изисквания за безопасност.
BA3-2-I - Двоен турникет, висок, с широк проход за по-голяма функционалност и комфорт при преминаването. Една роторна секция позволява безконтактно преминаване /напр.преминаване за хора в неравностойно положение или с допълнителен багаж/
BA3-2-R - Двоен висок турникет, надежден и функционален, с два ротора (един трисекционен и един едносекционен), позволяващ използването на два прохода едновременно - преминаване на човек и преминаване например на велосипед, багаж и др.
ПРЕДИМСТВА
- нова електронна система, с която лесно се конфигурират режимите и функциите на работа
- вградени LED-дисплеи с пиктограми за визуална сигнализация, които указват посоките на преминаване - червен знак указва блокиране на тази посока и устройството не допуска преминаването, зелена стрелка указва активна (деблокирана) посока на движение
- контрол за вход и изход - механизмът на устройството е оборудван със система, поддържаща контрол на пешеходния трафик в двете посоки на движение (влизане / излизане от контролираната зона)
- заключване на обратното движение - блокировката за обратно движение деактивира възможността за завъртане на роторните рамена в посока, обратна на тази, определена от външното устройство за управление. Така се предотвратява преминаването на 2 души въз основа на един единствен сигнал за оторизация
- вградена електромеханична система, която осигурява лесното въртене на рамената - при натиск към рамото на ротора се активира двигателя, който поддържа въртенето на ротора
- вж видео
ПРИЛОЖЕНИЕ
- за външен монтаж
- за контрол на пешеходни потоци и билетен контрол в обекти с контролиран и/или ограничен достъп - метростанции, перони, зони от градската транспортна инфраструктура, летища, гари, автогари
- оторизиран достъп до входове и контрол на работно време в административни и производствени сгради
- контрол на достъпа в обекти и зони с висока степен на сигурност
- билетен контрол в обекти с обществено предназначение - обществени басейни, стадиони и др.
- точки за контрол на достъпа и регистрация на работното време на работни места (например отделни зони във фабрики, офиси).
ДОПЪЛНИТЕЛНА ИНФОРМАЦИЯ
Свържете се с нашия офис или ни изпратете запитване
| Прикачен файл | Размер |
|---|---|
| 9.14 MB | |
| 13.55 MB | |
| 9.56 MB | |
| 12.13 MB | |
| 10.73 MB | |
| 11.04 MB | |
| 8.37 MB | |
| 8.67 MB | |
| 11.76 MB |





Инокс
Поцинкован
Поцинкован+RAL
RAL 5010
RAL 9003
RAL 7016


