You are here
Летящи вратички GR1
- ОПИСАНИЕ
- ЧЕРТЕЖИ
- ДОКУМЕНТИ
- ЗАПИТВАНЕ

Летящи вратички GR1-
| Модел | GR1-M / GR1-A | GR1-MS / GR1-AS |
![]() |
![]() |
|
|
ръчна / електромеханична с тръбно крило |
ръчна / електромеханична с плексигласово крило |
|
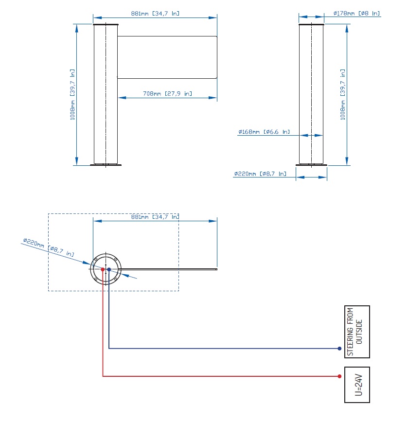
| Ширина [m] | 0,88 | 0,88 |
| Височина [m] | 1,00 | 1,00 |
| Дълбочина [m] | 0,22 | 0,22 |
| Финиш и цвят |
Инокс |
Инокс |
ОПИСАНИЕ
Автоматични или механични единични летящи вратички със стъклено или тръбно рамо. Съвместими с електронни системи за контрол на достъпа. Предназначени за контрол на пешеходното движение вътре в сгради, обикновено като допълнителни проходи (технически, за хора в неравностойно положение) към турникети, монтирани на основните подходи. Предвидени са за подов монтаж.
ПРЕДИМСТВА
- изчистен дизайн и лесен монтаж
- контрол за вход и изход за една или за двете посоки на движение
- вградена електромеханична система за задвижване на крилото
- вградена електронна система, която контролира блокиращата система и плавната скорост на движение на крилото
- възможност за заключване на крилото
- тествани на повече от 1200 завъртания на час
ПРИЛОЖЕНИЕ
- билетен контрол в спортни зали, фитнес-зали, обществени басейни и др.
- точки за контрол на достъпа и регистрация на работното време на работни места (например отделни зони във фабрики, офиси)
- за допълнителни подходи около основните турникети за достъп
ДОПЪЛНИТЕЛНА ИНФОРМАЦИЯ
Свържете се с нашия офис или ни изпратете запитване
| Прикачен файл | Размер |
|---|---|
| 7.09 MB |







Инокс 

